Thông số kĩ thuật Bồn cầu thông minh CAESAR CD1395 TAF400H nắp rửa điện tử
- Thương hiệu: Thiết bị vệ sinh CAESAR
- Mã sản phẩm: CD1395 TAF400H
- CD1395: thân bồn cầu 1 khối
- TAF400H: nắp rửa điện tử
- Kiểu bồn cầu: bồn cầu thông minh nắp rửa điện tử
- Nguồn điện: 220v, 50/60hz
- Kiểu xả: 2 nhấn – 3 lít xả tiểu, 4,8 lít xả đại
- Công nghệ xả: xả xoáy AQUAJET
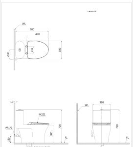
- Tâm thoát: 300mm
- Kích thước (sâu x rộng x cao) : 700x400x700mm
- Kích thước nắp (rộng x sâu x cao): 443x507x154mm
- Xuất xứ: Việt Nam
- Bảo hành: 10 năm phần sứ, 2 năm phần phụ kiện
Tinh năng Bồn cầu thông minh CAESAR CD1395 TAF400H nắp rửa điện tử
- Thiết kế hiện đại, trang nhã
- Kiểu dáng 1 khối ít góc cạnh giúp bồn cầu khó bám bẩn và dễ dàng vệ sinh
- MEN NANO SUPER FINE GLAZE: Vỏ ngoài bồn cầu được tráng men nano siêu mịn chống bám bẩn, dễ chùi rửa giúp bề mặt sứ luôn sáng đẹp suốt nhiều năm
- Xả xoáy AQUAJET: hệ thống xả xoáy cực mạnh cuốn bay mọi vết bẩn
- WATER-SAVING: Tiết kiệm nước tối đa với chỉ 4,8L / lần xả
- Tích hợp 2 vòi rửa sử dụng nước ấm: vòi rửa sau (đại tiện) và vòi rửa trước (tiểu tiện nữ)
- Vòi rửa tự động làm sạch trước và sau khi phun bằng nước nóng
- Đầu vòi rửa có thể tháo rời giúp dễ dàng thay thế hoặc vệ sinh
- AIR-IN: Chế độ phun kết hợp bọt khí giúp massage thư giãn
- 3 tuỳ chỉnh: tuỳ ý chỉnh vị trí (khoảng cách thò) của vòi rửa, nhiệt độ nước, áp lực nước phun
- Nắp rơi êm hạn chế tiếng ồn, nắp dễ tháo rời dễ dàng vệ sinh và lắp đặt
- Tính năng làm sạch sâu TURBO
- Bệ ngồi được sưởi ấm thoải mái
- Bảng điều khiển gắn trên thân nắp bệt tiện sử dụng
- Nắp và bệ ngồi được làm bằng vật liệu kháng khuẩn
- Tự động tiết kiệm điện năng tối đa
Bản vẽ kĩ thuật Bồn cầu thông minh CAESAR CD1395 TAF400H nắp rửa điện tử

Hình ảnh, video thực tế Bồn cầu thông minh CAESAR CD1395 TAF400H nắp rửa điện tử
Đang cập nhật…


















Đánh giá
Chưa có đánh giá nào.